Projeto de prefeitura no revit

Projeto de prefeitura no revit Hoje no mercado de arquitetura o que mais sentimos falta é de pessoas que saibam como O post Projeto de prefeitura no revit apareceu primeiro em Df Projetos.

Projeto de prefeitura no revit

Projeto de prefeitura no revit Hoje no mercado de arquitetura o que mais sentimos falta é de pessoas que saibam como fazer um projeto de prefeitura, e ainda que saiba os caminhos para fazer um projeto de arquitetura passar na prefeitura.

Pode se dizer que cada prefeitura exige uma regra para fazer um projeto em seu município, mas temos que ter pelo menos uma forma básica, ou uma base para se fazer um projeto, Com isso revit ajuda muito, pois o sistema pode gerar templates que ajudam a gravar estas informações, nos colocando acima da média pretendida pelas prefeituras. Projeto de prefeitura no revit

Aqui em são Paulo é bem complicado aprovar um projeto na prefeitura, porque por se tratar de uma cidade grande e muito adensada os limites para se construir são enormes, mas sempre tem um jeito de fazer algo bacana e claro usual para nossos clientes. Projeto de prefeitura no revit

[ls_button icon_right=”fa-home” color=”default” url=”https://pag.ae/bgp5SV5″ target=”_self” ]FAÇA O DOWNLOAD DOS NOSSOS TEMPLATE E FAMILIAS CLICANDO AQUI![/ls_button]

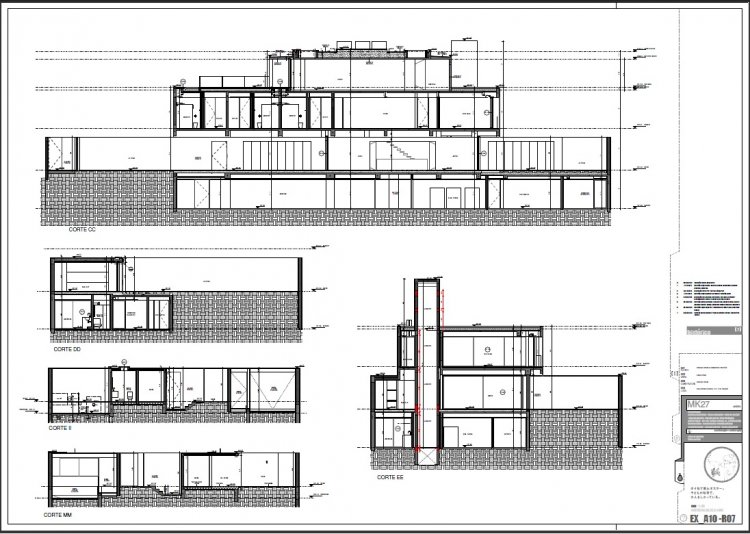
Projeto de prefeitura no revit 123

Mesmo com as regras pesadas aqui do município, vejo todos os dias grandes empreendimentos sendo construídos de maneira rápida, e vendidos de maneira ainda mais rápido, isso acontece que mesmo com todas as regras temos as vantagens de se construir moradias e fazer comércios no mesmo prédio, o famigerado edifício misto. Projeto de prefeitura no revit

Fatores importantes devem ser levados em conta, como as anotações, pois nossos amigos arquitetos e fiscais da prefeitura se apegam muito as anotações, e muitas vezes detalhes simples que esquecemos de colocar como cota de nível, podem passar despercebidos e pode gerar um atraso gigante no projeto.

Além das anotações medidas sempre devem estar claro no projeto. Digo isso porque tem gente que gosta de deixar a planta mais limpa deixando as medidas com um tamanho menor do que a norma, e isso é penalizado no momento que chaga nas mãos dos arquitetos e fiscais da prefeitura. Projeto de prefeitura no revit

Lembrando eu o revit deixa isso tudo salvo no seu template, tornando mais fácil fazer seus projetos, e sempre devemos salvar as novas configurações em nossos templates, para que isso nunca passe despercebido nos próximos projetos.

REGRAS SÃO IMPORTES NO PROJETO

A regra é sempre seguir as normas, nunca esquecer que as normas estão ai para ser seguidas, e sendo assim devemos ser inteligentes e usar as normas a nosso favor. Pensar sempre em um projeto que não exagere nas formas, para no futuro não gerar um trabalho desnecessário de refazer o projeto.

Aprenda que nunca devemos ficar refazendo projeto, seja ele grande ou pequeno, devemos sempre conferir o projeto, se houver alguma forma que se deva fazer para não ter mudar não mude, claro que o cliente é soberano na hora de mudar algo, mas mostre que as normas não permitem, ou se permitem o gasto pode ser maior do que esperado no projeto inicial. Projeto de prefeitura no revit

Para quem está estudando sobre o assunto, entenda que praticar é o melhor caminho sempre, pratica fara você ver onde estão os maiores erros na hora de projetar para prefeitura, e no fim ou na tentativa e erro chegamos aos acertos consecutivos.

[ls_button icon_right=”fa-home” color=”default” url=”https://pag.ae/bgp5SV5″ target=”_self” ]FAÇA O DOWNLOAD DOS NOSSOS TEMPLATE E FAMILIAS CLICANDO AQUI![/ls_button]

O post Projeto de prefeitura no revit apareceu primeiro em Df Projetos.